Home
About Us
Services
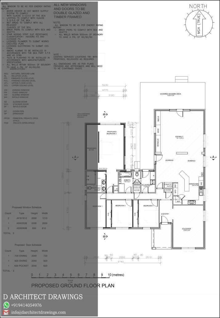
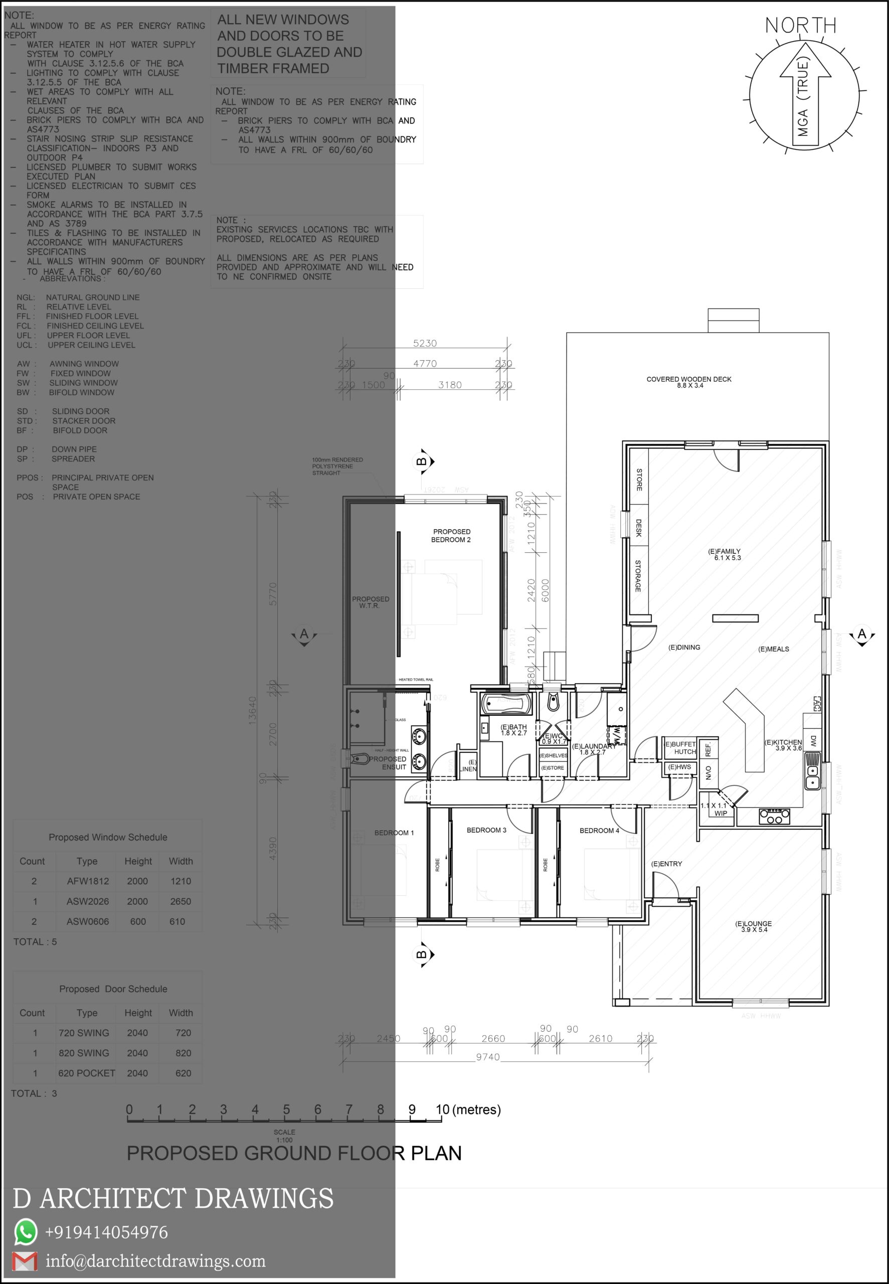
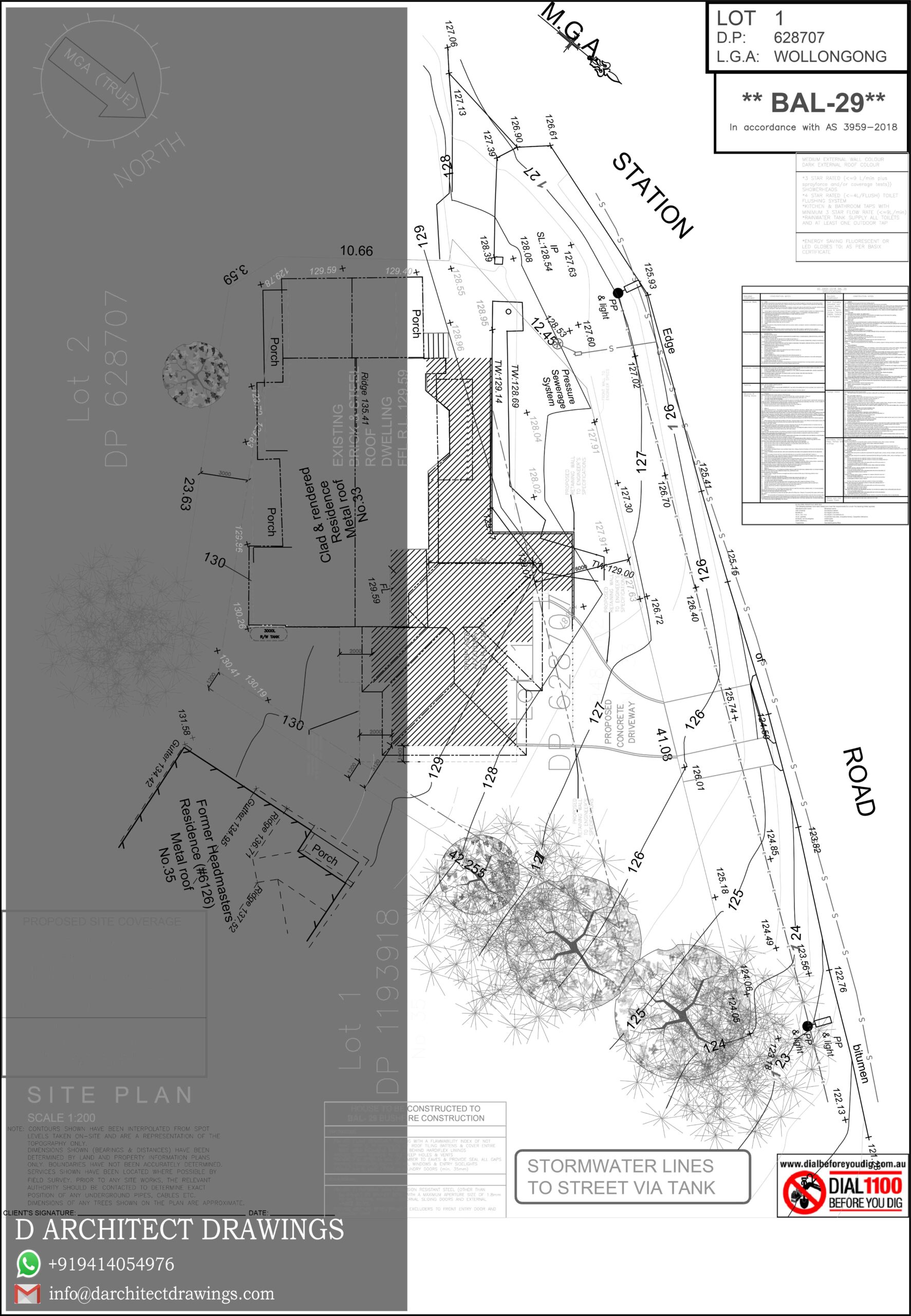
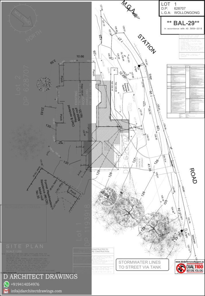
Samples
Contact Us
+91 94140 54976
Other Samples
CONTACT US